Prodej stavebního pozemku, 1080m2, Praha, Horní Počernice.
Nabízí realitní kancelář
Kontakt na makléře
| Cena: | 14 490 000 Kč (za nemovitost) |
|---|---|
| Lokalita: | Horní Počernice, Praha, Hlavní město Praha |
| Stav nabídky: | aktuální |
| Číslo: | 358-20781 |
| Typ reality: | Pozemky pro stavění - Pozemky |
| Celková plocha: | 1080 m2 |
| zobraz na mapě » |
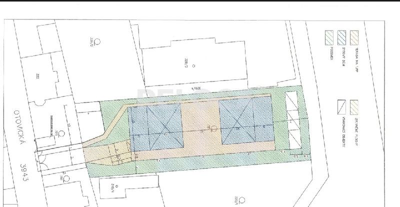
Hezký pozemek ve staré zástavbě rodinných domů v Horních Počernicích.
Rovinatý, zasíťovaný, obdélníkový stavební pozemek, klidné místo, soukromí, stará zástavba rodinných domů, dlážděná příjezdová cesta, kanalizace, voda, elektřina, plyn. Pro smluvení prohlídky prosím volejte.
| Plyn: | Ano |
|---|---|
| Kanalizace: | Ano |
| Vodovod: | Ano |
| Dálnice: | Ano |
|---|---|
| MHD: | Ano |
| Železnice: | Ano |
| Autobus: | Ano |
| Služby: | Ano |
| Supermarket: | Ano |
|---|---|
| Obchody: | Ano |
| Lékař: | Ano |
| Pošta: | Ano |
| Škola: | Ano |
| Školka: | Ano |
Podobné nabídky
Další informace
ZpětÚvodní strana » Reality a nemovitosti Praha » Pozemky Praha » Prodej pozemky Hlavní město Praha » Prodej pozemky pro stavění Hlavní město Praha » Prodej stavebního pozemku, 1080m2, Praha, Horní Počernice.
